I'm creating a new thread for this topic, since we kind of hi-jacked Jan's SafetyMax thread (http://www.polevaultpower.com/forum/viewtopic.php?f=8&t=18691) in the Equipment forum. This proposal does not yet belong in the Equipment forum becuz its still just about SAFETY ... in the discussion stage ... it's not a real product yet.
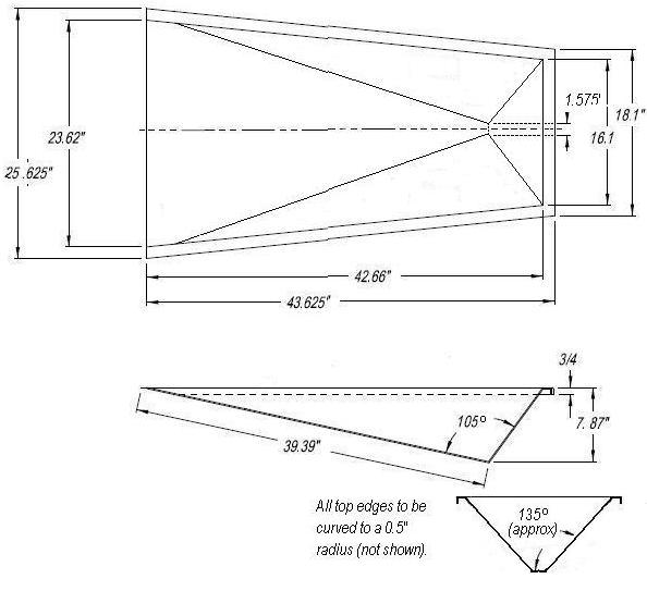
Here's what this box would look like ... I didn't draw the curved top edges becuz they're difficult to draw. So just imagine that every top edge is rounded with about a half-inch radius.
When the vaulter plants his pole, it's guided into the center 4 cm of the backstop ... everything else remains the same, and vaulters will SEE a difference in the box dimensions, but they won't FEEL any differences when they plant their pole or as the pole bends during their swing.
To manufacture this, you can roll the edges over a rounded vice/jig ... instead of the square ones used for standard boxes. This can be either hot-rolled or cold-rolled (mfr's choice - cold-rolled would be less expensive). You then cut the 2 side edges of the stopboard at a 45 degree angle, and the 2 side planes at a 45 degree angle. Then you weld the two 45 degree angles together to form the box with perfectly flared/flanged/rounded corners.
I estimate the cost of this box to be not much more than existing boxes. If it weren't for the curved top edges, there would be NO additional manufacturing cost ... in fact it would save some material! It can still be manufactured out of steel, aluminum, or even Skydex material (partially - as per the Skydex patent).
This box will also benefit from having a box collar ... preferably one like the SafetyMax, where the collar covers the top edges entirely (except on the stopboard and on the first couple inches of the side plates ... where the pole needs room to bend. THIS IS WHERE THE CURVED EDGE IS MOST CRITICAL. Of course if the pit butts up against the box, then the collar is somewhat redundant ... but realize that the bottom inch or so of the pit where it's touching the box edge provides almost no protection whatsoever.
There are 3 reasons why this box is safer ...
1. If a vaulter lands on a top edge, the impact of his landing will be spread over the radius of the flanged edge. While this might not seem like a significant improvement, there would definitely be less chance of serious injury if your head, shoulder, foot, or other body part strikes a top edge. Since the box is smaller than most body parts, this is ALMOST ALWAYS a hazard in most serious box accidents. Even if the reduction in the seriousness of an injury is small, it might make the difference between life and death. This statement sounds overly dramatic, but it's true ... without any exaggeration whatsover!
2. There is less room in the deepest part of the box for your body to land. For example, if your head or shoulder were to land in the deepest part of the box, some of the impact would be absorbed by the side plates. In most cases, a falling athlete that strikes a top edge will also strike the upper part of at least one side plate ... thus absorbing even more of his impact. In a standard box, NONE of the impact is absorbed by the side plates.
3. It provides a wider side angle for the pole to bend (approx 135 degrees instead of the standard 120 degrees). While this advantage is contentuous (in the PVP SafetyMax thread), for those rare vaults where a vaulter is out of control and overbends his pole, this feature improves safety without adding any additional cost ... and without giving any significant advantage to record-breakers that use this new box.
Kirk
New Safety Box - Proposed Design
- KirkB
- PV Rock Star
- Posts: 3550
- Joined: Mon May 19, 2008 6:05 pm
- Expertise: Former College Vaulter; Former Elite Vaulter; Former Coach; Fan
- Lifetime Best: 5.34
- Favorite Vaulter: Thiago da Silva
- Location: Vancouver, BC, Canada
New Safety Box - Proposed Design
Last edited by KirkB on Sat Jan 09, 2010 12:11 am, edited 1 time in total.
Run. Plant. Jump. Stretch. Whip. Extend. Fly. Clear. There is no tuck! THERE IS NO DELAY!
- KirkB
- PV Rock Star
- Posts: 3550
- Joined: Mon May 19, 2008 6:05 pm
- Expertise: Former College Vaulter; Former Elite Vaulter; Former Coach; Fan
- Lifetime Best: 5.34
- Favorite Vaulter: Thiago da Silva
- Location: Vancouver, BC, Canada
Re: New Safety Box - Proposed Design
I would like to provide a little historical background in defense of this proposed design ...
The dimensions of the PV planting box were established long before the advent of the fiberglass pole ... in the early 1900s. These dimensions included the 20 cm depth of the box, the 40 cm width of the top of the stopboard, and the 15 cm width at its bottom. By definition, these 3 dimensions created a 120 degree side angle. The angle between the bottom plate of the box and the stopboard was 90 degrees back then.
In the late 1960s, when fiberglass poles became overwhelmingly popular, a safety hazard was discovered when the poles would strike the top edge of the stopboard, causing an unsafe, untrue bend in the pole. By "untrue" I mean that the stopboard prevented the pole from bending in a natural arc ... and threw a vaulter off kilter from his natural swing, resulting in aborted vault attempts which were sometimes dangerous.
To remedy this safety hazard, the various regulatory bodies ... including the AAU and whatever other governing bodies existed at that time ... mandated that the angle between the bottom plate and the stopboard be increased by 15 degrees ... to its present 105 degrees.
WHEN THIS RULE CHANGE OCCURED, THERE WAS NO CORRESPONDING CHANGE MADE TO THE ANGLE OF THE SIDE PLATES!
Back when the standard box was designed, today's bar heights were not anticpated. The WR was no more than 12 feet, so no one saw the danger of a 13-20 foot vault.
Furthermore, vaulters using bamboo or other wooden poles had significantly better control of their pole as they swung into their sawdust pits. It was VERY EASY for a vaulter to recognize a poor takeoff, and abort his landing accordingly. Today, with fast and strong (but inexperienced) HS vaulters jumping higher than the bamboo WR, the number of accidents caused by landing in the box has sky-rocketed!
So today, we're stuck with the 120 degree angle of the side plates, which have no purpose other than FOR HISTORICAL PURPOSES ONLY.
I do understand the issue of rule changes that provide unfair advantages to newer athletes. However, there's been other precedent rule changes that have been made.
1. The 105 degree angle of the stopboard.
2. Shorter pegs.
3. New javelin.
4. Wider pits; front buns; protective covers over bases of standards.
I don't see this "rule change" as being any different ... they're all for the advancement of safety! Well OK ... maybe not the short pegs!
Kirk
The dimensions of the PV planting box were established long before the advent of the fiberglass pole ... in the early 1900s. These dimensions included the 20 cm depth of the box, the 40 cm width of the top of the stopboard, and the 15 cm width at its bottom. By definition, these 3 dimensions created a 120 degree side angle. The angle between the bottom plate of the box and the stopboard was 90 degrees back then.
In the late 1960s, when fiberglass poles became overwhelmingly popular, a safety hazard was discovered when the poles would strike the top edge of the stopboard, causing an unsafe, untrue bend in the pole. By "untrue" I mean that the stopboard prevented the pole from bending in a natural arc ... and threw a vaulter off kilter from his natural swing, resulting in aborted vault attempts which were sometimes dangerous.
To remedy this safety hazard, the various regulatory bodies ... including the AAU and whatever other governing bodies existed at that time ... mandated that the angle between the bottom plate and the stopboard be increased by 15 degrees ... to its present 105 degrees.
WHEN THIS RULE CHANGE OCCURED, THERE WAS NO CORRESPONDING CHANGE MADE TO THE ANGLE OF THE SIDE PLATES!
Back when the standard box was designed, today's bar heights were not anticpated. The WR was no more than 12 feet, so no one saw the danger of a 13-20 foot vault.
Furthermore, vaulters using bamboo or other wooden poles had significantly better control of their pole as they swung into their sawdust pits. It was VERY EASY for a vaulter to recognize a poor takeoff, and abort his landing accordingly. Today, with fast and strong (but inexperienced) HS vaulters jumping higher than the bamboo WR, the number of accidents caused by landing in the box has sky-rocketed!
So today, we're stuck with the 120 degree angle of the side plates, which have no purpose other than FOR HISTORICAL PURPOSES ONLY.
I do understand the issue of rule changes that provide unfair advantages to newer athletes. However, there's been other precedent rule changes that have been made.
1. The 105 degree angle of the stopboard.
2. Shorter pegs.
3. New javelin.
4. Wider pits; front buns; protective covers over bases of standards.
I don't see this "rule change" as being any different ... they're all for the advancement of safety! Well OK ... maybe not the short pegs!
Kirk
Run. Plant. Jump. Stretch. Whip. Extend. Fly. Clear. There is no tuck! THERE IS NO DELAY!
- Capt Caveman
- PV Fan
- Posts: 47
- Joined: Fri Sep 11, 2009 10:59 am
- Expertise: Coach, Masters Vaulter, Parent
- Lifetime Best: 5.05
- World Record Holder?: Renaud Lavillenie
- Favorite Vaulter: Scott Huffman
- Location: North America....for now.
Re: New Safety Box - Proposed Design
As i follow this from start to, well, middle? I still have to wonder what is the ACTUAL cost? You connot repalace a box like you can a uniform. It involves "construction" costs. So even if the box (the piece of equiptment) is one dollar, if it costs 1000.00 to put in the ground I have to agree with "vaultwest" that you are looking at a HUGE disatvantage. Just another reason to tag the vault as an unnecessary expense. At least in the U.S., and as I see it Kirkb is in Canada. No offense Kirk but each country has a different way of dealing whith issues, especially when it comes to money.
Now as a novice, yet educated individual, I apply the "petrov" model to all of this and realize that the TECHNIQUIE side of the "ultimate" model does not mention nor require a new/different box. I wonder how much of what is being implied is a work around of good coaching/techinique and how much is fact. If in fact the box is a MAJOR factor in height/saftey why did we just now realize it? The current model is based on the current requirements/limitations/rules of the box. If ONE country changed the rules could those athletes "qualify" for other events? In other words, lets say the U.S. changed the rule, and an athlete jumped a mark using the "new" box, would that mark be accepted? or would the "new" box need to be evaluated/accepted by the WORLD?!?!?!
I guess what I am asking is, do you think that vaulters around the world require a new box or is it just in the U.S. and Canada? If so why? If the rest of the world can train and compete without incident or concern why is our need so urgent?
Just asking the obvious. Our event is bigger than just North America.
Now as a novice, yet educated individual, I apply the "petrov" model to all of this and realize that the TECHNIQUIE side of the "ultimate" model does not mention nor require a new/different box. I wonder how much of what is being implied is a work around of good coaching/techinique and how much is fact. If in fact the box is a MAJOR factor in height/saftey why did we just now realize it? The current model is based on the current requirements/limitations/rules of the box. If ONE country changed the rules could those athletes "qualify" for other events? In other words, lets say the U.S. changed the rule, and an athlete jumped a mark using the "new" box, would that mark be accepted? or would the "new" box need to be evaluated/accepted by the WORLD?!?!?!
I guess what I am asking is, do you think that vaulters around the world require a new box or is it just in the U.S. and Canada? If so why? If the rest of the world can train and compete without incident or concern why is our need so urgent?
Just asking the obvious. Our event is bigger than just North America.
Those who know WHY will always be victorious over those who only know HOW.
- KirkB
- PV Rock Star
- Posts: 3550
- Joined: Mon May 19, 2008 6:05 pm
- Expertise: Former College Vaulter; Former Elite Vaulter; Former Coach; Fan
- Lifetime Best: 5.34
- Favorite Vaulter: Thiago da Silva
- Location: Vancouver, BC, Canada
Re: New Safety Box - Proposed Design
This is a wide open proposal, with no limitations by country. To be honest tho ... even tho I'm Canadian ... I was thinking primarily of the US market ... since the majority of PVP posters are American ... and if it doesn't fly in the US it won't fly elsewhere. Vice versa, if it's accepted in the US, then I see no reason for it not being accepted world-wide ... in due time.
I don't see this as a territorial proposal at all ... my concern is only PV safety ... world-wide.
One thing I forgot to mention is that you can build a retrofit prototype for this box very easily. Just cut 2 wedges of hardwood in the appropriate shape that fit inside a standard box, and glue/screw them to a faceplate (say of 1/4" plywood) that surrounds the box on 3 sides at ground level, and router the top edges to a half-inch radius. If box installation costs and rule change issues are a concern, you can still use the retrofit prototype for safter training sessions!
Question: If a vaulter alternated back and forth between a "new box" site and an "old box" site, do you think he'd notice much difference in the functionality of each box? So much so that he wouldn't be able to make the transition gradually ... over time? Personally, I don't think there would be much difference ... the new box would feel the same, but just be safer ... but I'm interested in hearing your comments.
Kirk
I don't see this as a territorial proposal at all ... my concern is only PV safety ... world-wide.
One thing I forgot to mention is that you can build a retrofit prototype for this box very easily. Just cut 2 wedges of hardwood in the appropriate shape that fit inside a standard box, and glue/screw them to a faceplate (say of 1/4" plywood) that surrounds the box on 3 sides at ground level, and router the top edges to a half-inch radius. If box installation costs and rule change issues are a concern, you can still use the retrofit prototype for safter training sessions!
Question: If a vaulter alternated back and forth between a "new box" site and an "old box" site, do you think he'd notice much difference in the functionality of each box? So much so that he wouldn't be able to make the transition gradually ... over time? Personally, I don't think there would be much difference ... the new box would feel the same, but just be safer ... but I'm interested in hearing your comments.
Kirk
Run. Plant. Jump. Stretch. Whip. Extend. Fly. Clear. There is no tuck! THERE IS NO DELAY!
- kcvault
- PV Pro
- Posts: 333
- Joined: Tue Sep 08, 2009 11:41 pm
- Expertise: College vaulter, post collegiate vaulter, BA kinesiology,
- Lifetime Best: 5.40m
- World Record Holder?: Renaud Lavillenie
- Favorite Vaulter: Annie Burlingham
- Location: Turlock Ca
Re: New Safety Box - Proposed Design
I want to see if I could say what I said in the last thread better. If I take a stiff pole and hold to high to get it to vertical I will naturally go sideways until by going sideways the pole is low enough for me to move forward. That is the reason a person over gripping goes to the side when they have a lined up plant. If I am holding 16 ft and the pole moves 2 foot to the side then I am only holding 14ft from the ground, like I said before your options when holding to high are go to the side or come back down on the runway. I think why people think the pole bend pushes them to the side is because when someone is holding to high they over bend the pole giving the illusion it was the fault of the bend of the pole and not the fault of the vaulter. I think it would be way to hard to get everyone to by into the design of a new box.
It is one thing to offer different brands of poles because the vaulter has the choice of what brand there using. I like the current box design I don't won't to go to a track meet and be forced to jump with a box design I don't agree with. I know it's all in the name of safety just like the soft box is in the name of safety. However I have jumped at north ridge on there soft box and kept coming up short, I had to move down five poles and had one of my most dangerous days I have had vaulting in college. Just because something is theoretically safer does not make it safer. The box caller from the other post does nothing to affect the structure of the box, and no adjustments need to be made to use it so it is a great piece of equipment to make the vault safer, i am not sure changing the structural design of the box will yield the same result. Though I was skeptical of the safety box collar before I tried it so who knows. I say just focus on ways to pad the remainder of the hard edges, and leave the structure of the box the same.
--Kasey
It is one thing to offer different brands of poles because the vaulter has the choice of what brand there using. I like the current box design I don't won't to go to a track meet and be forced to jump with a box design I don't agree with. I know it's all in the name of safety just like the soft box is in the name of safety. However I have jumped at north ridge on there soft box and kept coming up short, I had to move down five poles and had one of my most dangerous days I have had vaulting in college. Just because something is theoretically safer does not make it safer. The box caller from the other post does nothing to affect the structure of the box, and no adjustments need to be made to use it so it is a great piece of equipment to make the vault safer, i am not sure changing the structural design of the box will yield the same result. Though I was skeptical of the safety box collar before I tried it so who knows. I say just focus on ways to pad the remainder of the hard edges, and leave the structure of the box the same.
--Kasey
- chasing6
- PV Nerd
- Posts: 84
- Joined: Wed Jan 07, 2009 5:03 pm
- Expertise: Former Collegiate Vaulter, Post-Collegiate Vaulter, Coach (all-levels), Die-Hard Fan
- Lifetime Best: 5.23m
- Location: Seattle, Wa
- Contact:
Re: New Safety Box - Proposed Design
kcvault wrote:However I have jumped at north ridge on there soft box and kept coming up short, I had to move down five poles and had one of my most dangerous days I have had vaulting in college. Just because something is theoretically safer does not make it safer.
Be careful of your logic here, there are nearly countless ways that a vault can go wrong as you well know.
I think Kirk has some valid points. There really is no reason to push aside any proposal to make the event safer (especially in the sue-happy US). I also do not see how the "new box" would hinder the Petrov model as long as the pole is able to bend forward and to either side naturally. Just because it's a new idea doesn't make it a bad one, even if you "like the current box design". Don't knock it 'till you try it I say.

The only thing that I can think might effect the vault is the narrower gap at the deepest portion. On the current box, as long as you have your plan up straight you have some leeway to be a little off center in your take-off (it happens, especially in windy conditions) without causing the pole to angle away from center. The chances of this happening would be minimal, but you can't rule it out.
- KirkB
- PV Rock Star
- Posts: 3550
- Joined: Mon May 19, 2008 6:05 pm
- Expertise: Former College Vaulter; Former Elite Vaulter; Former Coach; Fan
- Lifetime Best: 5.34
- Favorite Vaulter: Thiago da Silva
- Location: Vancouver, BC, Canada
Re: New Safety Box - Proposed Design
chasing6 wrote: ... I think Kirk has some valid points. There really is no reason to push aside any proposal to make the event safer (especially in the sue-happy US). I also do not see how the "new box" would hinder the Petrov model as long as the pole is able to bend forward and to either side naturally. Just because it's a new idea doesn't make it a bad one, even if you "like the current box design". Don't knock it 'till you try it I say.![]()
Chasing, thanks for keeping an open mind on new ideas.
chasing6 wrote: The only thing that I can think might effect the vault is the narrower gap at the deepest portion. On the current box, as long as you have your plant up straight you have some leeway to be a little off center in your take-off (it happens, especially in windy conditions) without causing the pole to angle away from center. The chances of this happening would be minimal, but you can't rule it out.
Not sure if I understand your concern here.
The proposed new box would actually cause the pole to "angle" TOWARDS the center. Is this not BETTER than a standard box?
With the standard box, the pole is NOT guided towards the exact center of the stopboard ... it could be off by 5 cm or so to either side of center. If you typically aim for the RIGHT corner of the stopboard, but you inadvertently hit it on the LEFT corner, you're off by about 10 cm of your usual aim. With the proposed new box ... by the side planes guiding the pole towards the exact middle, you're GUARANTEED of being centered. Perhaps I'm misunderstanding your point.
Kirk
Run. Plant. Jump. Stretch. Whip. Extend. Fly. Clear. There is no tuck! THERE IS NO DELAY!
- KirkB
- PV Rock Star
- Posts: 3550
- Joined: Mon May 19, 2008 6:05 pm
- Expertise: Former College Vaulter; Former Elite Vaulter; Former Coach; Fan
- Lifetime Best: 5.34
- Favorite Vaulter: Thiago da Silva
- Location: Vancouver, BC, Canada
Re: New Safety Box - Proposed Design
OK, I think I might understand your point now. Are you saying that if your takeoff point (where your foot leaves the ground) happens to be 5 cm to either side of the center of the runway, then your pole will be that SAME 5 cm off to that side ... thus self-correcting you jump by making it exactly forward (straight-in-line)?
If that's what you mean, I don't see it that way. I agree that your foot could be slightly off center, but I don't think there's any self-correction that puts your pole butt off by exactly the same amount ... especially if you become off center in your penultimate or last step ... then the pole is going to continue its drop path quite independent of this. I think that no matter WHERE your foot leaves the ground (exactly centered, 5 cm to the left, or 5 cm to the right), where the pole butt hits the stopboard of a standard box can vary by that same amount (5 cm to the left or right) INDEPENDENT of whether your foot was off center or not.
What do you think? I'm willing to concede that it's POSSIBLE that if your foot is off, then your pole butt MIGHT be off by that same amount, but I don't think this would USUALLY true. In fact, I'm thinking that these 2 variables are somewhat (but not entirely) independent of each other.
Kirk
If that's what you mean, I don't see it that way. I agree that your foot could be slightly off center, but I don't think there's any self-correction that puts your pole butt off by exactly the same amount ... especially if you become off center in your penultimate or last step ... then the pole is going to continue its drop path quite independent of this. I think that no matter WHERE your foot leaves the ground (exactly centered, 5 cm to the left, or 5 cm to the right), where the pole butt hits the stopboard of a standard box can vary by that same amount (5 cm to the left or right) INDEPENDENT of whether your foot was off center or not.
What do you think? I'm willing to concede that it's POSSIBLE that if your foot is off, then your pole butt MIGHT be off by that same amount, but I don't think this would USUALLY true. In fact, I'm thinking that these 2 variables are somewhat (but not entirely) independent of each other.
Kirk
Run. Plant. Jump. Stretch. Whip. Extend. Fly. Clear. There is no tuck! THERE IS NO DELAY!
- chasing6
- PV Nerd
- Posts: 84
- Joined: Wed Jan 07, 2009 5:03 pm
- Expertise: Former Collegiate Vaulter, Post-Collegiate Vaulter, Coach (all-levels), Die-Hard Fan
- Lifetime Best: 5.23m
- Location: Seattle, Wa
- Contact:
Re: New Safety Box - Proposed Design
KirkB wrote:OK, I think I might understand your point now. Are you saying that if your takeoff point (where your foot leaves the ground) happens to be 5 cm to either side of the center of the runway, then your pole will be that SAME 5 cm off to that side ... thus self-correcting you jump by making it exactly forward (straight-in-line)?
That's exactly what I was thinking.
KrikB wrote:If that's what you mean, I don't see it that way. I agree that your foot could be slightly off center, but I don't think there's any self-correction that puts your pole butt off by exactly the same amount ... especially if you become off center in your penultimate or last step ... then the pole is going to continue its drop path quite independent of this. I think that no matter WHERE your foot leaves the ground (exactly centered, 5 cm to the left, or 5 cm to the right), where the pole butt hits the stopboard of a standard box can vary by that same amount (5 cm to the left or right) INDEPENDENT of whether your foot was off center or not.
I actually thought about this after I posted. There are a lot of assumptions in my thinking, mainly that your tip will always be in line with your take off foot. I agree that the take off point and position of the tip are pretty independent and most likely more related to the carry/plant mechanics.
It would be interesting to test out the new box by applying your "retrofit" idea. Making inserts out of wood wouldn't be too hard, and you could do some light testing on straight and bent poles to see how it "feels" with the new angles. Maybe i'll give it a shot when we move outside for the spring.

- KirkB
- PV Rock Star
- Posts: 3550
- Joined: Mon May 19, 2008 6:05 pm
- Expertise: Former College Vaulter; Former Elite Vaulter; Former Coach; Fan
- Lifetime Best: 5.34
- Favorite Vaulter: Thiago da Silva
- Location: Vancouver, BC, Canada
Re: New Safety Box - Proposed Design
chasing6 wrote: ... It would be interesting to test out the new box by applying your "retrofit" idea. Making inserts out of wood wouldn't be too hard ...
Chasing, I've built a full-sized non-functional prototype out of cardboard and I'm working with Jerry Hock in Florida to build a wooden functional prototype. He intends to have his prototype ready to train his kids within the next month or two. I'm providing pics and plans with dimensions to Jerry for him to use in building it.
We would be happy to share our plans and our experience with anyone that's genuinely interested in this. The intended purpose is 100% PV safety.
The inserts are held in place by a 4x4 sheet of plywood that attaches to them, with the plywood cut out to fit the perimeter of the box. The design is now more complicated than the plan view above, and it includes routered top edges (quarter-round) on the box's perimeter, with high-density foam fastened on top of the plywood. I'll skip the other details for now, but if you ... or anyone else ... including manufacturers ... is interested, we will provide all of our information to you without any fees or restrictions. Just PM me or Jerry. We are putting this into the public domain so that no one can patent it and profit any more from it than anyone else ... our contribution to PV safety!
This retrofit product is targetted as a "training safety device" ... it is not intended to be used for sanctioned meets.
Kirk
Run. Plant. Jump. Stretch. Whip. Extend. Fly. Clear. There is no tuck! THERE IS NO DELAY!
-
Divalent
- PV Whiz
- Posts: 149
- Joined: Tue Oct 27, 2009 11:31 am
- Expertise: Parent
- Lifetime Best: 0-00.00
- World Record Holder?: Renaud Lavillenie
- Contact:
Re: New Safety Box - Proposed Design
KirkB wrote:I've built a full-sized non-functional prototype out of cardboard and I'm working with Jerry Hock in Florida to build a wooden functional prototype. He intends to have his prototype ready to train his kids within the next month or two. I'm providing pics and plans with dimensions to Jerry for him to use in building it.
I'm wondering if, instead of wood, you could make the retro-fit sides out of a somewhat firm rubber-like material. Something like the stuff they use to make those massive box "plugs" to prevent a pond of water collecting in the box during rain (or maybe even a bit softer). If the outer surface that forms the sides of the new channel were laminated with a thin (2 mm or so) sheet of stiff teflon-like material, it would guide the pole down the channel without undue resistance, and yet be a bit more yielding in the event of an impact. (The sides of the box probably don't need to be solid like the backstop: it would only be getting glancing blows with the pole tip.)
Once you had a solid wood pieces of the proper shape (mirror images for left and right), it would be easy to use them to create molds for a rubberized version.
If made from a rubberized material, there might be additional features you could incorporate. For example, you could make a version that incorporates some of the features of the maxsafe box pad. Like, perhaps make it thicker at the top sides, starting from 3 inches from the top of the back of the box and going towards the runway with "flaps" that extend up and out over the side top edges (kind of the reverse of the max safe, which has padding that extends over the edge and down into the box). (I'm not sure if you can visualize this, but essentially you would keep the wide channel at the back of the box, where the pole bending laterally uses uses more room).
Finally, I like the idea of a retro-fit, as it wouldn't require expensive work replacing existing boxes; with a little rubber cement you could put it on any existing box, and could also remove it without too much trouble.
BTW, would 1.6 inches (4 cm) be wide enough for big poles with big plugs?
- KirkB
- PV Rock Star
- Posts: 3550
- Joined: Mon May 19, 2008 6:05 pm
- Expertise: Former College Vaulter; Former Elite Vaulter; Former Coach; Fan
- Lifetime Best: 5.34
- Favorite Vaulter: Thiago da Silva
- Location: Vancouver, BC, Canada
Re: New Safety Box - Proposed Design
Divalent wrote: Once you had a solid wood pieces of the proper shape (mirror images for left and right), it would be easy to use them to create molds for a rubberized version.
Yes, I like your thinking
... which is aligned with our intentions. But the wood prototype must be built first, and it will be perfectly functional and safe to use during real vault practices. I'm not yet convinced that the inserts need to be soft ... I'm more concerned about rounding the top edges of the box ... but I'll leave that discussion for now.Divalent wrote: If made from a rubberized material, there might be additional features you could incorporate. For example, you could make a version that incorporates some of the features of the maxsafe box pad. ...
Not sure what you mean. Is this with the basic shape that I show plan, side, and end view of above ... or something different?
I have not yet revealed our latest prototype, but the inserts are now wider at the top ... especially towards the stopboard ... except not where it would interfere with the pole bending. Stay tuned.Divalent wrote: Finally, I like the idea of a retro-fit, as it wouldn't require expensive work replacing existing boxes; with a little rubber cement you could put it on any existing box, and could also remove it without too much trouble.
Jerry has a concrete box, so not sure how rubber cement would bind to that ... maybe it would ... I dunno. The plywood frame has some other advantages ... not yet disclosed.
Divalent wrote: ... would 1.6 inches (4 cm) be wide enough for big poles with big plugs?
I think so ... but it needs to be measured and tested with the biggest plugs ... and with the FLAME POLE TIP. I'm quite sure it's in the range of 3-5 cm. Keep in mind that these butt plugs aren't >4cm at their BOTTOM ... their widest girth is a couple cm up from the bottom ... where there's more room at the stopboard.
Kirk
Run. Plant. Jump. Stretch. Whip. Extend. Fly. Clear. There is no tuck! THERE IS NO DELAY!
Who is online
Users browsing this forum: No registered users and 41 guests